ID CP2040901

Clădire de birouri în zona Centrală

Această proprietate nu mai este activă,
te invităm să vizualizezi proprietăți similare

ID CP2040901

2,250 € (negociabil) + 21% TVA

Spațiu de birouri de închiriat
Central, Timisoara
300 mp
2008

Premiată la una dintre bienalele de arhitectură locale, clădirea răspunde la două condiții majore: integrarea în țesutul urban neomogen, dar cu aliniamente clare, și crearea unei imagini simple, cu impact pe piața imobiliară. Reducerea costurilor a fost obținută printr-un design fără plafon, cu tavane realizate din beton turnat direct (un experiment rar în Timișoara la acea vreme), în cofraje Tego, urmând modulele de tâmplărie și elementele mobile de iluminat montate pe un sistem de șine. Utilizarea grinzilor de beton turnate "upside-down" face inutil tavanul fals din ghips-carton, în timp ce masa termică a plăcilor de beton expuse răcește aerul din interior păstrând departe razele solare și cu ajutorul sistemelor de jaluzele metalice micro și macro pe fațade. Podeaua tehnică flotantă permite accesul facil la instalațiile sanitare și electrice, asigurând flexibilitatea în amenajarea și subdivizarea temporară a spațiilor de birouri.

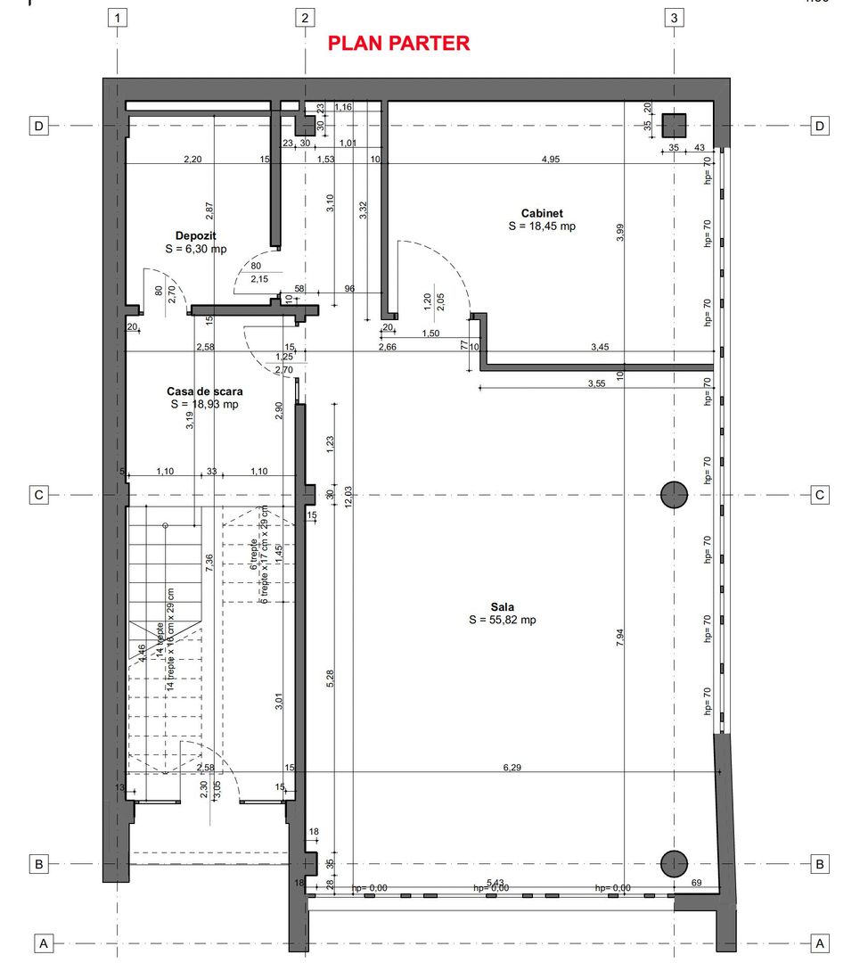
Cu suprafața o utilă de 300 mp, situat în zona Centrală, imobilul este structurat pe 3 niveluri astfel:

PARTER

- birou open space - 55 mp

- birou individual - 18 mp

- grup sanitare/server room

- scara acces nivel superior

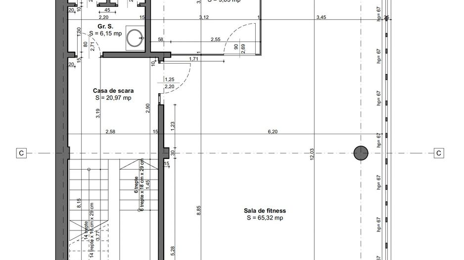
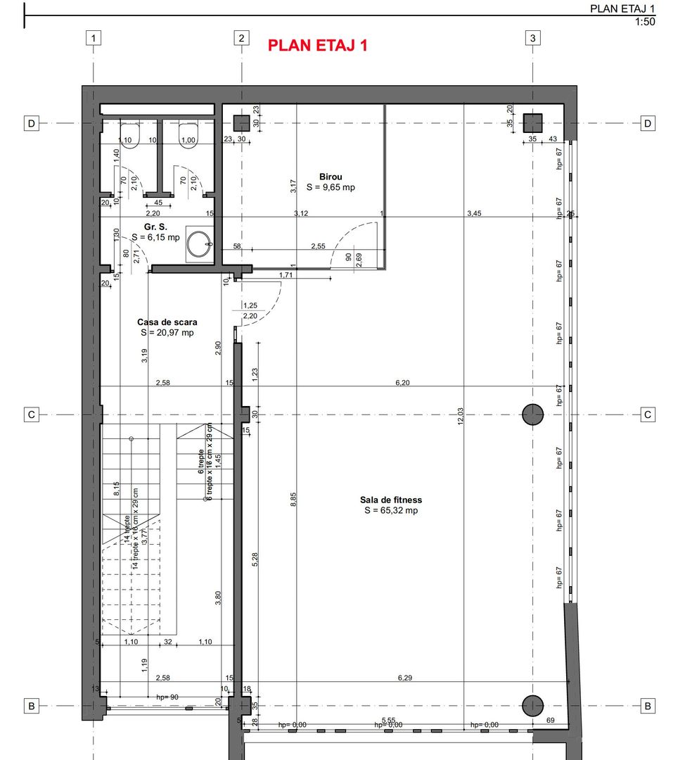
ETAJ 1

- birou open space - 65 mp

- birou individual - 9, 5 mp

- grup sanitar

- scara acces nivel superior

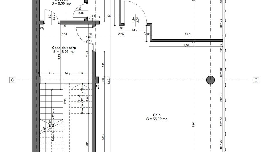
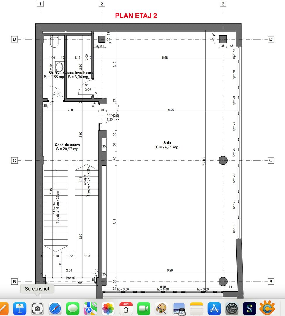
ETAJ 2

- birou open space - 74,7 mp

- grup sanitar

- scara acces

Citește mai mult

  • Tip imobil
    Clădire birouri
  • Etaj
    Parter, 1, 2
  • Clasă birouri
    C
  • Număr camere
    5
  • Număr băi
    3
  • Suprafață construită
    390 mp
  • Suprafață utilă
    300 mp
  • Disponibilitate
    Imediat
  • Compartimentare spațiu
    Parțial compartimentat
  • An construcție
    2008
  • Construcție nouă
    Da
  • Număr etaje clădire
    2
  • Are demisol
    Da
  • Cadastru
    Există
  • Intabulare
    Există
  • Mod de dobândire
    Contract

Facilități

Afișare logo pe clădire
Cameră server
Centrală termică
Contorizare separată
Control acces securizat pe bază de cartele
Control al accesului pe zone
Control individual AC pentru fiecare zonă de birou
Ferestre care se deschid
Gresie
Grupuri sanitare amenajate și utilate
Internet
Mochetă
Podea înălțată
Posibilitatea alegerii operator date / telefonie
Sistem de alarmă
Stație de autobuz în apropiere
Stație de tramvai în apropiere
Unități Split
Necesare:

Site-ul nu poate funcționa corect fără aceste cookie-uri. Vezi cookie-urile

Statistică:

Strângem statistici anonime despre voi, vizitatorii unici, pentru a vă îmbunătăți experiența dumneavoastră. Vezi cookie-urile

Marketing:

Pentru a ne promova mai eficient serviciile noastre, folosim cookies pentru a vă identifica și a vă oferi proprietăți și servicii personalizate. Vezi cookie-urile

Acest site folosește cookies, află detalii. Alege ce tipuri de cookies dorești să permitem: