ID CP2348582

Clădire de birouri de închiriat în Dumbrăvița

ID CP2348582

3,500 € + 21% TVA

Spațiu de birouri de închiriat
Dumbravita
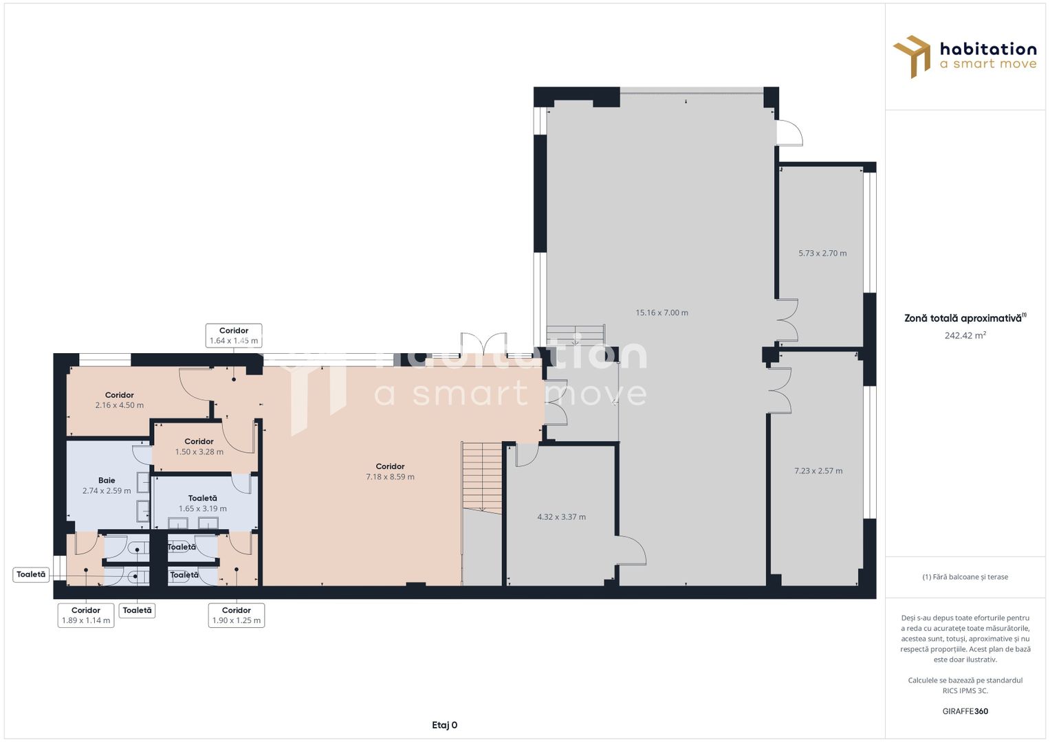
470 mp
2007

Clădirea de birouri, cu un regim de înălțime P+1, oferă un mediu de lucru eficient și confortabil, ideal pentru companii în căutarea unui sediu propriu. Dispune de o curte proprie, asigurând intimitatea și siguranța angajaților.

Printre facilități se numără 15 locuri de parcare, suficient spațiu de depozitare și multiple spații pentru birouri ce pot fi personalizate în funcție de necesitățile viitorului chiriaș.

În plus, sunt disponibile 4 grupuri sanitare și vestiar, pentru confortul întregii echipe.

Acest imobil este soluția perfectă pentru o afacere în expansiune care necesită un spațiu versatil, bine poziționat și cu acces facil către centrul orașului sau către autostrada.

Citește mai mult

  • Tip imobil
    Clădire birouri
  • Clasă birouri
    B
  • Număr camere
    6
  • Număr băi
    4
  • Suprafață construită
    540 mp
  • Număr terase
    1
  • Suprafață utilă
    470 mp
  • Disponibilitate
    Imediat
  • Suprafață totală birouri
    470 mp
  • Compartimentare spațiu
    Parțial compartimentat
  • Parcări suprafață
    15
  • An construcție
    2007
  • Construcție nouă
    Da
  • Număr etaje clădire
    1

Facilități

Afișare logo pe clădire
Cameră server
Centrală termică
Contorizare separată
Garaj
Internet
Parcare deschisă
Recepție
Sistem de alarmă
Telefon
Dan Pantel - Habitation Imobiliare
Dan Pantel
Managing Partner

+40745358109


Solicită chiar acum o vizionare
Nume
Telefon
Email
Sună acum Solicită vizionare
Necesare:

Site-ul nu poate funcționa corect fără aceste cookie-uri. Vezi cookie-urile

Statistică:

Strângem statistici anonime despre voi, vizitatorii unici, pentru a vă îmbunătăți experiența dumneavoastră. Vezi cookie-urile

Marketing:

Pentru a ne promova mai eficient serviciile noastre, folosim cookies pentru a vă identifica și a vă oferi proprietăți și servicii personalizate. Vezi cookie-urile

Acest site folosește cookies, află detalii. Alege ce tipuri de cookies dorești să permitem: