ID CP2691491

Spațiu pentru birouri langa Funshop Buziașului

ID CP2691491

3,222 € + 21% TVA

Spațiu de birouri de închiriat
Buziasului, Timisoara
379 mp
2000

Dacă ești în căutarea unui spațiu de birouri generos, cu acces rapid și vizibilitate excelentă, această clădire situată in vecinătatea Funshop Park poate fi exact ce ai nevoie.

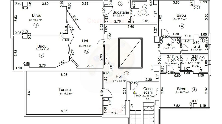
Imobilul oferă în total 379 mp utili, structurați pe două niveluri, care se pot închiria împreună sau separat:

Etaj 1 – 207 mp: compartimentat în birouri individuale, o sală de ședințe, bucătărie și grupuri sanitare. Perfect pentru echipe care au nevoie atât de spații private, cât și de zone comune.

Etaj 2 – 172 mp: birouri luminoase, o bucătărie, terasă generoasă de 37 mp, plus zone de depozitare și grupuri sanitare. Potrivit pentru echipe dinamice sau pentru o firmă care își dorește o zonă de relaxare/outdoor.

Avantaje:

Poziționare strategică, într-o zonă de business în plină dezvoltare.

Vecinătatea cu Funshop Park – acces imediat la restaurante, cafenele și servicii.

Posibilitate de închiriere parțială (pe niveluri) sau integrală.

Compartimentare practică, cu birouri de diferite dimensiuni, sală de ședințe și terasă.

Acces facil la transport public și artere principale ale orașului.

Un spațiu versatil, pregătit să găzduiască echipe din domenii precum IT, servicii, consultanță sau companii care pun preț pe confort și accesibilitate.

Citește mai mult

  • Tip imobil
    Clădire birouri
  • Etaj
    1, 2
  • Număr camere
    11
  • Număr băi
    6
  • Număr terase
    1
  • Suprafață utilă
    379 mp
  • Disponibilitate
    Imediat
  • Suprafață totală birouri
    379 mp
  • Compartimentare spațiu
    Parțial compartimentat
  • An construcție
    2000
  • Construcție nouă
    Da

Facilități

Afișare logo pe clădire
Centru comercial în apropiere
Internet
Parcare deschisă
Stație de autobuz în apropiere
Telefon
Dan Pantel - Habitation Imobiliare
Dan Pantel
Managing Partner

+40745358109


Solicită chiar acum o vizionare
Nume
Telefon
Email
Sună acum Solicită vizionare
Necesare:

Site-ul nu poate funcționa corect fără aceste cookie-uri. Vezi cookie-urile

Statistică:

Strângem statistici anonime despre voi, vizitatorii unici, pentru a vă îmbunătăți experiența dumneavoastră. Vezi cookie-urile

Marketing:

Pentru a ne promova mai eficient serviciile noastre, folosim cookies pentru a vă identifica și a vă oferi proprietăți și servicii personalizate. Vezi cookie-urile

Acest site folosește cookies, află detalii. Alege ce tipuri de cookies dorești să permitem: