ID CP2761240

Casă de închiriat în zona Lunei – ideală pentru locuit sau birouri

ID CP2761240

1,750 € (negociabil)

Casă / Vilă cu 10 camere de închiriat
Lunei, Timisoara
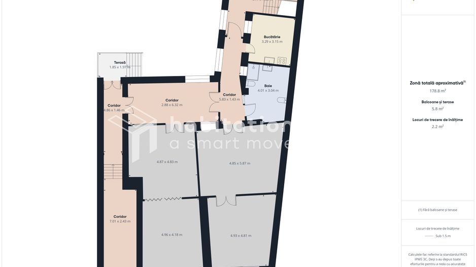
333 mp
1930

Vă propunem spre inchirere o proprietate deosebită situată într-o zonă liniștită și verde a cartierului Lunei din Timișoara. Imobilul este structurat pe demisol, parter și mansardă (D+P+M), având o arhitectură aparte și spații generoase. Grădina complet amenajată oferă un cadru intim și plăcut, ideal pentru momente petrecute în aer liber.

Destinațiile sunt multiple: poate deveni cu ușurință o locuință familială, birouri, grădiniță, after-school, clinică sau spațiu pentru activități educaționale.

Avantaje principale:

- Zonă extrem de liniștită, dar cu acces rapid către punctele importante ale orașului

- Spații generoase, compartimentate eficient

- Grădină privată

Pentru mai multe detalii sau pentru a programa o vizionare, nu ezitați să ne contactați!

Citește mai mult

  • Număr camere
    10
  • Număr bucătării
    1
  • Număr băi
    3
  • Geam la baie
    Da
  • Disponibilitate
    Imediat
  • Tip casă
    Individual
  • Stare interior
    Finisat modern
  • Suprafață utilă
    333 mp
  • Suprafață teren
    410 mp
  • Acoperiș
    Țiglă
  • Stadiu construcție
    Finalizată
  • An construcție
    1930
  • Tip construcție
    Cărămidă
  • Număr subsoluri
    1
  • Are mansardă
    Da

Facilități

Aer condiționat
Apă
Bucătărie închisă
Bucătărie mobilată
Bucătărie utilată
Calorifere
Canalizare
CATV
Centrală proprie
Curent
Gaz
Grădină proprie
Iluminat stradal
Internet
Mijloace de transport în comun
Rulouri / obloane manuale
Străzi asfaltate
Telefon
Ușă intrare lemn
Uși interior celulare
WC Serviciu
Wireless
Adina Mărgărit - Habitation Imobiliare
Adina Mărgărit
Managing Partner

0740333146


Solicită chiar acum o vizionare
Nume
Telefon
Email
Sună acum Solicită vizionare
Necesare:

Site-ul nu poate funcționa corect fără aceste cookie-uri. Vezi cookie-urile

Statistică:

Strângem statistici anonime despre voi, vizitatorii unici, pentru a vă îmbunătăți experiența dumneavoastră. Vezi cookie-urile

Marketing:

Pentru a ne promova mai eficient serviciile noastre, folosim cookies pentru a vă identifica și a vă oferi proprietăți și servicii personalizate. Vezi cookie-urile

Acest site folosește cookies, află detalii. Alege ce tipuri de cookies dorești să permitem: